Woonoppervlakte
Circa 96 m²
Inhoud
Circa 319 m³
Bouwjaar
Gebouwd in 2008
Aantal kamers
3 kamers (2 slaapkamers)

Johan Hofmanstraat 140

1069 KE, Amsterdam (Noord-Holland)

LICHT EN ROYAAL 3-KAMERAPPARTEMENT (97 M²) MET ZONNIG BALKON, PRIVÉBERGING ÉN EIGEN PARKEERPLAATS IN DE PARKEERGARAGE

Bent u op zoek naar een ruim en praktisch ingedeeld appartement met veel natuurlijk licht, een zonnig balkon op het zuidwesten, volop bergruimte én een eigen parkeerplaats? Dan is dit appartement op de derde verdieping, gelegen aan een rustige straat in het groene en goed bereikbare Amsterdam Osdorp, aan de Johan Hofmanstraat 140, zeker een bezichtiging waard.

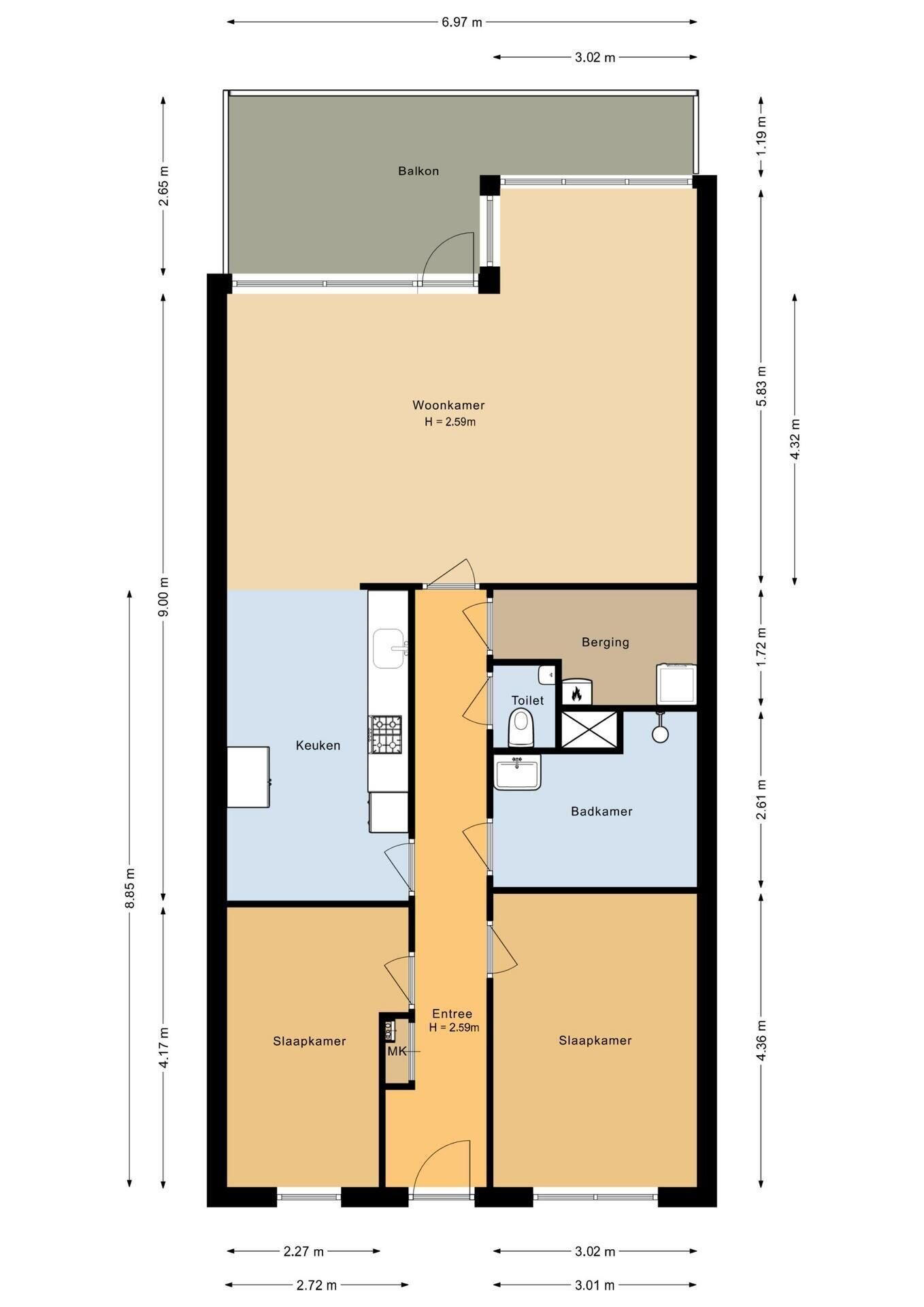
Via de verzorgde, gemeenschappelijke entree bereikt u het appartement per lift of trap. De ruime hal biedt toegang tot de garderobe, het separate toilet, de meterkast en alle vertrekken.
De brede woonkamer (ca. 7 meter) bevindt zich aan de voorzijde van het gebouw en is dankzij de royale raampartij over de volledige breedte heerlijk licht.
Aansluitend ligt het zonnige balkon op het zuidwesten, een fijne plek om te ontspannen en te genieten van het buitenleven. Door de diepte is er voldoende ruimte voor een comfortabele loungeset.

Het balkon is heerlijk overdekt en is daardoor in elk seizoen en weertype te gebruiken. Voor wie nóg meer comfort wenst, is het mogelijk om het balkon later zelf af te sluiten met glaswanden. Daarmee creëert u een extra beschutte en royale ruimte, vergelijkbaar met een loggia, waar het zelfs in de winter goed vertoeven is, hoe fijn is dat!

De nette keuken grenst direct aan de woonkamer, is voorzien van alle gemakken die u maar kunt wensen en met voldoende kast- en werkruimte.

Het appartement beschikt over twee goed bemeten slaapkamers, die naast elkaar zijn gelegen. De royale badkamer is uitgerust met een inloopdouche, een wastafelmeubel met spiegelkast én extra opbergruimte.
Daarnaast is er een praktische inpandige berging met de cv-installatie (Intergas), mechanische ventilatie en aansluiting voor de wasmachine. Het gehele appartement is afgewerkt met een nette laminaatvloer.
In de onderbouw beschikt u over een eigen (fietsen)berging en een privéparkeerplaats in de parkeergarage onder het gebouw.

Omgeving
Het complex is centraal gelegen in Osdorp (Amsterdam Nieuw-West), op korte afstand van winkels, scholen, sportfaciliteiten en openbaar vervoer. Tramlijn 1 (halte om de hoek) brengt u in circa 20 minuten naar het centrum van Amsterdam. Ook tramlijn 17 ligt op loopafstand. Met de auto bereikt u snel de A4, A5, A9 en A10.

Voor dagelijkse boodschappen zijn er buurtwinkels aan de Pieter Calandlaan en Tussen Meer. Op loopafstand vindt u winkelcentrum Osdorpplein met een uitgebreid winkelaanbod, waaronder Albert Heijn, HEMA, TK Maxx, Etos, H&M en de moderne WestMarket.

Recreatiemogelijkheden zijn er volop in de buurt, zoals bij de Sloterplas met het Sloterpark, het zwembad, de jachthaven en het stadsstrand. Ook het Nieuwe Meer, het Amsterdamse Bos en Spaarnwoude liggen op fietsafstand. Tegenover de plas vindt u Theater De Meervaart en diverse horecagelegenheden.

Bijzonderheden
• Licht en ruim 3-kamerappartement op de derde verdieping
• Woonoppervlakte ca. 97 m²
• Groot, zonnig balkon op het zuidwesten
• Eigen berging in de onderbouw
• Privéparkeerplaats in de parkeergarage
• Bouwjaar 2008
• Energielabel A
• Verwarming en warm water via eigen cv-ketel (Intergas)
• Professioneel beheerde VvE
• VvE-bijdrage ca. € 222,28 per maand (inclusief berging en parkeerplaats)
• Kindvriendelijke woonomgeving met veel voorzieningen in de buurt
• Erfpacht afgekocht tot 15 februari 2057

Nieuwsgierig geworden? Kijk op johanhofmanstraat140.nl voor meer informatie of neem contact met ons op voor een bezichtiging. We laten u dit fijne appartement graag zien!

English:

BRIGHT AND SPACIOUS 2-BEDROOM APARTMENT (97 M²) WITH SUNNY BALCONY, PRIVATE STORAGE ROOM, AND PRIVATE PARKING SPACE IN THE GARAGE

Are you looking for a spacious and well-laid-out apartment with plenty of natural light, a sunny southwest-facing balcony, ample storage, and a private parking space? Then this apartment on the third floor, located on a quiet street in the green and easily accessible area of Amsterdam Osdorp, at Johan Hofmanstraat 140, is definitely worth a viewing.

Through the well-maintained communal entrance, you can reach the apartment by elevator or stairs. The spacious hallway provides access to the wardrobe, a separate toilet, the meter cupboard, and all rooms.
The wide living room (approx. 7 meters) is located at the front of the building and features a large window across the full width, allowing in plenty of natural light.
Connected to the living room is the sunny southwest-facing balcony, a wonderful place to relax and enjoy the outdoors. Thanks to its depth, there's enough space for a comfortable lounge set.

The balcony is nicely covered, making it usable in all seasons and type of weather. For those seeking even more comfort, it is possible to enclose the balcony with glass panels at a later stage. This way, you can create an extra sheltered and spacious area, similar to a loggia, where you can enjoy the outdoors even in winter, how great is that!

The neat kitchen is directly connected to the living room and comes fully equipped with all the conveniences you could wish for, including plenty of cupboard and counter space.

The apartment offers two generously sized bedrooms, situated side by side. The spacious bathroom is fitted with a walk-in shower, a washbasin unit with mirrored cabinet, and extra storage space.
In addition, there is a practical internal storage room housing the central heating system (Intergas), mechanical ventilation, and the washing machine connection. The entire apartment is finished with a neat laminate floor.
On the ground level, you also have access to your own (bicycle) storage room and a private parking space in the garage beneath the building.

Location
The apartment complex is centrally located in Osdorp (Amsterdam Nieuw-West), close to shops, schools, sports facilities, and public transport. Tram line 1 (stop around the corner) takes you to the city centre of Amsterdam in about 20 minutes. Tram line 17 is also within walking distance. By car, you can quickly reach the A4, A5, A9, and A10 motorways.

For daily groceries, there are local shops on Pieter Calandlaan and Tussen Meer. Osdorpplein shopping centre is within walking distance and offers a wide variety of stores, including Albert Heijn, HEMA, TK Maxx, Etos, H&M, and the modern WestMarket.

Recreation options are abundant nearby, such as the Sloterplas with its surrounding park, swimming pool, marina, and city beach. The Nieuwe Meer, the Amsterdamse Bos, and Spaarnwoude are all within cycling distance. Across the lake, you’ll find Theater De Meervaart and several restaurants and cafés.

Key Features
• Bright and spacious 2-bedroom apartment on the third floor
• Living area approx. 97 m²
• Large, sunny southwest-facing balcony
• Private storage room on the ground floor
• Private parking space in the underground garage
• Built in 2008
• Energy label A
• Heating and hot water via private central heating boiler (Intergas)
• Professionally managed homeowners’ association (VvE)
• VvE contribution approx. €222.28 per month (including storage and parking)
• Family-friendly neighbourhood with many local amenities
• Ground lease paid off until February 15, 2057

Curious to know more? Visit johanhofmanstraat140.nl for more information or contact us to schedule a viewing. We’d love to show you this wonderful apartment!

Plattegronden

Overdracht

Vraagprijs
€ 490.000 k.k.
Status
Verkocht
Bijdrage VvE
€ 212,22 per maand

Bouw

Object type
Galerijflat (appartement)
Soort bouw
Bestaande bouw
Bouwjaar
2008

Oppervlakte en inhoud

Woonoppervlakte
96 m²
Inhoud
319 m³
Externe bergruimte
7 m²
Gebouwgeb. buitenruimte
14 m²

Indeling

Aantal kamers
3 kamers (2 slaapkamers)
Aantal badkamers
1 badkamer en 1 apart toilet
Aantal woonlagen
6 woonlagen
Gelegen op
4e woonlaag
Voorzieningen
Lift

Energie

Energielabel
A
Energielabel registratie
01-05-2020

Buitenruimte

Ligging
In woonwijk
Balkon / dakterras
Balkon aanwezig

Bergruimte

Schuur / berging
Box

Garage

Soort garage
Parkeerplaats

VvE checklist

Inschrijving KvK
Ja
Jaarlijkse vergadering
Ja
Periodieke bijdrage
Ja (€ 212,22 per maand)
Reservefonds aanwezig
Ja
Onderhoudsplan
Ja
Opstalverzekering
Ja

Energieverbruik in Amsterdam

Energielabel deze woning

Energielabel A

Publicatie energielabel: 01-05-2020

Stroomverbruik per jaar

1960 kWh

(Gemiddelde appartement in Amsterdam)

Gasverbruik per jaar

730 m³

(Gemiddelde appartement in Amsterdam)

* Cijfers zijn afkomstig van het CBS en bedoeld als indicatie en kunnen verschillen voor deze woning

Indicatie hypotheeklasten

Eigen inleg:
Spaargeld / overwaarde

Rente:
Laagste 10-jaars rente

Laagste 10-jaars rente

2,75% - Centraal Beheer Groen... - NHG


3,04% - Argenta Groen Hypothee... - 80%

Laagste 20-jaars rente

3,18% - Argenta Groen Hypothee... - NHG


3,39% - Argenta Groen Hypothee... - 80%

Laagste 30-jaars rente

3,35% - Argenta Groen Hypothee... - NHG


3,56% - Argenta Groen Hypothee... - 80%


Hypotheek:

Bruto maandlasten: € 0 p/m

Netto maandlasten: € 0 p/m

Hoe berekenen we dit?

Het rentepercentage is gebaseerd op de laagste 10 jaars vaste rente voor één hypotheekdeel. De vermelde rente (3.04% zonder NHG) is gecontroleerd op 28-10-2025. Deze berekening is gebaseerd op een annuïteitenhypotheek die volledig wordt afgelost, waarbij de maandlasten gedurende de gehele looptijd gelijk blijven. De werkelijke rente en netto maandlasten kunnen variëren, afhankelijk van uw persoonlijke situatie en de hypotheekverstrekker. Raadpleeg een financieel adviseur voor een nauwkeurige berekening en advies. Aan deze berekening kunnen geen rechten worden ontleend; het dient enkel als indicatie.

Documentatie

Kadastrale kaart

Leefomgeving

WOZ waarderapport

BAG uittreksel

Plattegronden PDF

Energielabel-a

Aanslag-aanslagnummer-78312174

Kadaster-kaart-sloten-noord-holland-e-8312-a42-1-kaart

Lijstvanzaken-4420

Vragenlijst-deel-b-appartementsrecht-4420

Bezoek onze website

Zonnegrenzen bekijken

Op de kaart

Inwoners in Amsterdam

Cijfers voor postcodegebied 1069

Totaal aantal inwoners
26350 inwoners
Mannen
49%
Vrouwen
51%

Inwoners in Amsterdam

Cijfers voor postcodegebied 1069

tot 15 jaar
20%
15 tot 25 jaar
13%
25 tot 35 jaar
32%
45 tot 65 jaar
22%
65 en ouder
13%

Huishoudens in Amsterdam

Cijfers voor postcodegebied 1069

Eenpersoons zonder kinderen
45%
Meerpersoons zonder kinderen
18%
Huishoudens zonder kinderen
63%

Huishoudens in Amsterdam

Cijfers voor postcodegebied 1069

Huishoudens met één kind
10%
Huishoudens met meerdere kinderen
26%
Huishoudens met kinderen
36%

Woningen in Amsterdam

Cijfers voor postcodegebied 1069

Woningen voor 1945
1%
Woningen tussen 1945 en 1965
19%
Woningen tussen 1965 en 1975
19%
Woningen tussen 1975 en 1985
4%
Woningen tussen 1985 en 1995
15%

Woningen in Amsterdam

Cijfers voor postcodegebied 1069

Woningen tussen 1995 en 2005
8%
Woningen tussen 2005 en 2015
32%
Woningen na 2015
1%
Huurwoningen
70%
Koopwoningen
30%

Overige in Amsterdam

Cijfers voor postcodegebied 1069

Gemiddelde WOZ waarde
€ 299.000,-
Personen onder de 65 met uitkering
11%

Overige in Amsterdam

Cijfers voor postcodegebied 1069

Adressen per km²
3977
Stedelijkheid (schaal 1 op 5)
100%
Postcode kaart 1069 Gemeente kaart amsterdam

Korte feiten over Amsterdam

Amsterdam is de hoofdstad van Nederland. De stad, in het Amsterdams ook Mokum genoemd (afkomstig uit het Jiddisch), ligt in de provincie Noord-Holland, aan het IJ, het Noordzeekanaal en de monding van de Amstel. De stad ligt in de gelijknamige gemeente Amsterdam en heeft 873.338 inwoners (1 januari 2021), Groot-Amsterdam telt 1.459.402 inwoners.

Indien u vragen heeft of u wilt een bezichtiging inplannen, dan kunt u gebruik maken van het formulier hiernaast. Er zal daarna op korte termijn contact met u worden opgenomen.

Dutch Brokers Makelaardij

Uw vertrouwde partner in de woningmarkt. Dutch Brokers en Expat4Expat biedt een uitgebreide dienstverlening met ruim 15 jaar ervaring in het kopen, financieren en verkopen van woningen. Onze uitzonderlijke reputatie binnen de expatmarkt hebben we te danken aan de intensieve begeleiding die we onze klanten al meer dan 15 jaar bieden.

Onze diensten

Aankoopbegeleiding

Wij begeleiden u bij het vinden van uw droomhuis, onderhandelen voor de beste voorwaarden en zorgen voor een soepele afronding van de aankoop.

Verkoopbegeleiding

Ons team ondersteunt u bij de strategische verkoop van uw woning, van het vaststellen van de optimale prijs tot aan het sluiten van de deal en de definitieve overdracht.

Financiering

Onze financiële experts helpen u bij het vinden van de meest passende financieringsopties, volledig afgestemd op uw persoonlijke situatie.

Nazorg

Ook na de transactie staan wij voor u klaar met advies en ondersteuning, zodat u met een gerust hart kunt genieten van uw nieuwe woning of verkoop.

Dutch Brokers Makelaardij

Johan Hofmanstraat 140, Amsterdam

€ 490.000 k.k. - Verkocht

Helaas, deze woning is verkocht!

Net te laat, deze woning is al verkocht. Laat een zoekopdracht bij ons achter zodat wij u direct kunnen helpen wanneer er nieuw aanbod beschikbaar komt.